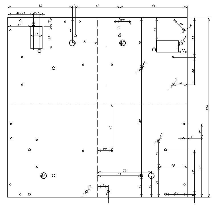
ハードウエア構成図
シャーシ2階



Back