マシン原点
マシン寸法



マシン原点は、車軸の中心としています。

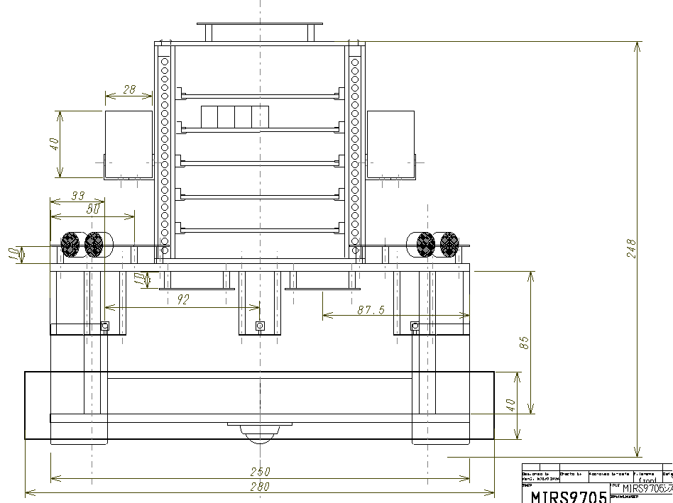
正面(m-0000)
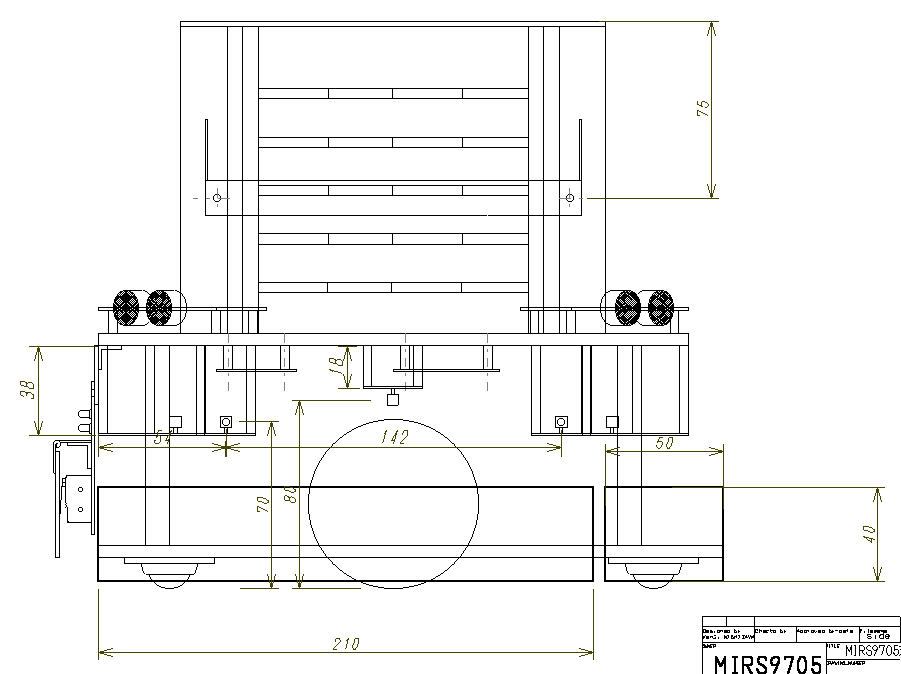
側面(m-0001)
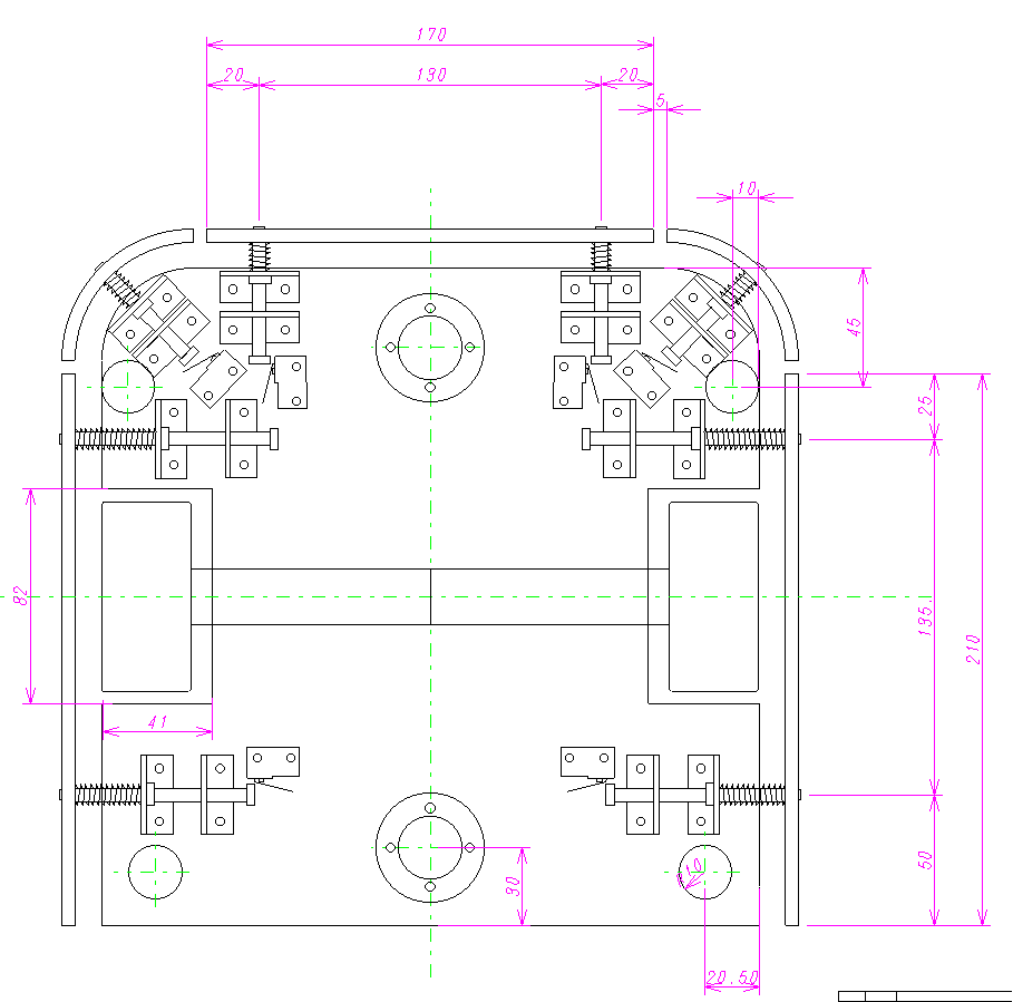
基盤シャーシ(m-0002)
車輪シャーシ(m-0003)



back!