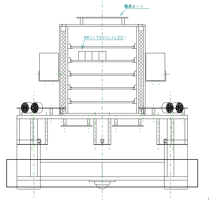
配置図(MMI,各センサ,シャーシ部主要部品)



各センサ、MMIボード、シャーシ部主要部品の配置図です。

なお、超音波センサはシャーシの対角線上に超音波ボードの中心がきます。

正面(m-0000)
側面(m-0001)
基盤シャーシ(m-0002)
車輪シャーシ(m-0003)



back!