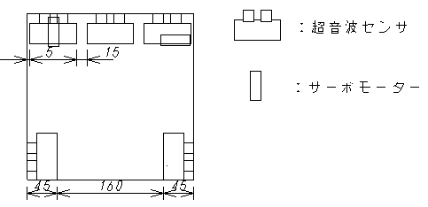
センサー配置図


タッチセンサ



超音波センサ


左右前面の超音波センサはサーボによって回転し、後方の超音波センサは、実際は1つの超音波センサしか動作しないが、
高速に切り替えることによって仮想的に2つ同時に動作している。


赤外線センサ


この図はシャーシ2階部分を下から見た図です。


戻る