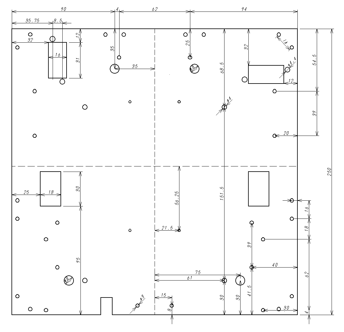
寸法

配線を通す為の穴を2つ左右に空け、また同じように配線を通す為に後ろ側を 少し削りました。
Back